À moins de 600 m de la plage, en plein centre-ville de Sainte-Maxime, avec les premiers commerces à moins de 200 m, vous pourrez tout faire à pied tout en profitant du calme. Cet appartement de 90 m² offre de belles prestations; il est dans un bon état général.
Découvrez ci-dessous la présentation complète de l’appartement, ses photos, ses points clés, ses caractéristiques principales, le plan détaillé, ainsi qu’une visite virtuelle immersive pour explorer chaque espace.
Présentation de l’appartement
L’appartement se situe au sein de la résidence Espace Maxime, une copropriété recherchée pour son emplacement central et sa proximité immédiate avec les commerces, la plage et les services du quotidien.
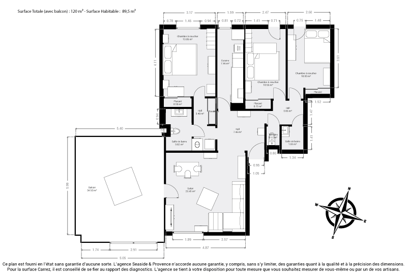
Avec une surface Carrez de 89,37 m² (90 m² habitables hors loggia), il se compose d’un séjour de 23,38 m², de trois chambres confortables, d’une grande loggia de 31 m² et de nombreux rangements. La climatisation réversible assure un bon confort en toute saison.
Situé au calme, il offre un cadre de vie agréable, à deux pas de l’animation du centre-ville. Bien entretenu, il dispose de menuiseries en bois, de volets traditionnels et d’un chauffage individuel électrique. Une cave et une place de parking privative en sous-sol complètent ce bien.
Photos
Points clés
- Centre-ville et plage à pied (120 à 600m)
- Surface habitable : 90 m²
- Logement en bon état
- Climatisation réversible
- Résidence très appréciée, proche de toutes les commodités
- Cave et place de parking incluses
Caractéristiques principales de l’appartement :
Surface et pièces
- Surface Carrez : 89.37 m²
- Surface Utile : 90 m² (surface habitable sans la loggia)
- Nombre de chambre : 3
- Séjour : 23.38 m²
- Loggia : 31 m²
Confort et équipements
- Exposition : Sud-Est
- Climatisation : oui, réversible
- Chauffage : individuel, électrique
- Eau chaude : ballon électrique
- Menuiseries : bois simple vitrage
- Volets bois
- Ascenseur : oui
- Gardien : non
- Piscine : non
Informations techniques
- Nom de la résidence : Espace Maxime
- Année de construction : 1982
- DPE : D (160 kWh/m²/an)
- GES : B (6 Kg CO2/m²/an)
- Nombre de lots d’habitation dans la copropriété : 86
- Nombre total de lots total dans la copropriété : 380 (habitations, stationnements, caves, commerces)
- Accès personne à mobilité réduite (PMR) : Non
Stationnement et extérieurs
- Stationnement : place privative numérotée (non boxée) en sous-sol
Localisation et distances
- Quartier : centre-ville de Sainte-Maxime
- Distance des commerces : 120 m
- Distance de la plage : 550 m
- Distance du Port de Sainte-Maxime : 750 m
- Distance du centre historique de Sainte-Maxime : 650 m
Taxes et charges
- Charges de copropriété : 1480 €
- Taxe foncière : 1774 €
Plan détaillé de l’appartement

Pré-visiter cette appartement avec visite virtuelle
Avant de vous déplacer, nous vous proposons une visite virtuelle immersive de cet appartement. Sans installer de logiciel, explorez chaque espace, mesurez les volumes et projetez-vous dans ce logement, confortablement depuis chez vous. Cela vous permettra de qualifier votre intérêt et de préparer une éventuelle visite sur place.
Informations complémentaires :
Prix
399 000€
Honoraires d’agence inclus, à la charge du vendeur.
Pour toutes informations complémentaires contactez nous au : +33 634 336 720
Les diagnostics immobiliers, le dernier procès-verbal d’assemblée générale, ainsi que le règlement de copropriété sont à votre disposition sur simple demande. Les informations concernant l’état des risques et pollutions auxquels ce bien est exposé sont disponibles sur le site gouvernemental Géorisques (georisques.gouv.fr).
Si vous trouvez un bien immobilier que nous vendons moins cher ailleurs, n’hésitez pas à nous le signaler, nous ferons le nécessaire.
Vous souhaitez vendre un appartement ou une villa dans le Golfe de Saint-Tropez, entre Saint-Raphaël et Grimaud (dont Sainte-Maxime) ?
Contactez-nous : nous vous offrirons une estimation détaillée, fondée sur plusieurs méthodes de calcul. Estimation offerte et sans engagement.
















