À seulement 3 minutes du charmant village du Plan-de-la-Tour, découvrez cette villa lumineuse d’environ 130 m², nichée dans un environnement calme et verdoyant avec piscine, deux appartements indépendants, terrasses plein sud et vue dégagée sur la plaine et les collines.
Découvrez ci-dessous la présentation complète de la villa, ses photos, ses points clés, ses caractéristiques principales, le plan détaillé, ainsi qu’une visite virtuelle immersive pour explorer chaque espace.
Présentation de la villa
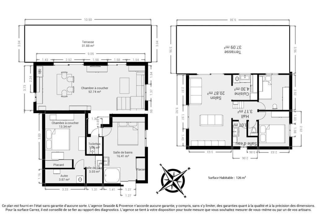
Cette propriété au caractère provençal offre une configuration rare et modulable grâce à ses deux appartements indépendants (T3 chacun), idéals pour accueillir famille et amis, ou pour générer un revenu locatif intéressant.
Premier niveau (env. 50 m²) :
Une pièce de vie lumineuse avec belle hauteur sous plafond, une cuisine équipée indépendante, deux chambres, une salle d’eau, un WC séparé et une vaste terrasse de 40 m² exposée plein sud avec vue dégagée sur les collines.
Deuxième niveau (env. 80 m²) :
Un grand séjour ouvert sur cuisine américaine entièrement équipée, deux chambres dont une avec salle d’eau privative et l’autre avec salle de bains, rangements, ainsi qu’une terrasse de 40 m² prolongeant l’espace piscine.
Extérieurs :
Piscine de 8,5 m x 4,5 m avec plage en pierre, espace détente avec coin bar, jardin paysagé complanté d’essences méditerranéennes, abris de rangement.
Photos
Points clés
- Vue dégagée sur la plaine du Plan-de-la-Tour, sans vis-à-vis
- Surface habitable : 126 m²
- Terrain : 689 m²
- Chambres : 4
- Pièces : 6
- Deux entrées indépendantes, deux salons, deux cuisines
- DPE : C
- Piscine
Caractéristiques principales de la villa / maison
Surface et pièces
- Surface habitable total : 126 m²
- Surface au sol : 128 m²
- Surface de la pièce de vie (appartement principale) : 48,45 m²
- Terrasse : multiples
- Nombre de chambres : 4 chambres (2 chambres dans chaque appartement)
Confort et équipements
- Exposition : Sud‑Ouest
- Climatisation : oui, réversible
- Chauffage : individuel, électrique
- Eau chaude : ballons électriques
- Menuiseries : double vitrage Aluminium ou PVC, 10 mm
- Panneaux photovoltaïques : non
- Volets : bois
- Ascenseur : non
- Piscine : oui (non chauffé)
- Gardien : non
Informations techniques
- Année de construction : 1983-1988
- DPE : C (124 kWh/m²/an) / GES : A (5 kg CO₂/m²/an)
Stationnement et extérieurs
- stationnement : 2 places
Localisation et distances
- Quartier : Le Lauva
- Distance commerces et centre-ville : 1,8 km
Taxe et charges
- Taxe foncière : 1550 €
- Pas de charge de lotissement ni de copropriété, maison totalement indépendante
Plan détaillé de la villa

Pré-visiter cette propriété avec la visite virtuelle et la vidéo
Avant de vous déplacer, nous vous proposons, ci-dessous, une visite virtuelle et une vidéo de ce bien immobilier. Vous n’aurez aucun logiciel à installer. Confortablement installé de chez vous, vous pourrez pré-visiter cette habitation. Avec la visite virtuelle, vous pouvez même faire différentes mesures, pour mieux vous rendre compte des volumes. Cela vous permettra de minimiser vos déplacements et de qualifier ou non votre intérêt pour ce logement. Nous restons à votre disposition pour une visite en présentiel ou répondre à vos questions.
Informations complémentaires
Prix
735 000 €
Les honoraires de notre agence sont inclus dans le prix et sont à la charge du vendeur.
Pour toutes informations complémentaires contactez nous au : +33 6 34 33 67 20
Les diagnostics immobiliers, sont à votre disposition sur simple demande. Les informations concernant l’état des risques et pollutions auxquels ce bien est exposé sont disponibles sur le site gouvernemental Géorisques (georisques.gouv.fr).
Si vous trouvez un bien immobilier que nous vendons moins cher ailleurs, n’hésitez pas à nous le signaler, nous ferons le nécessaire.
Si vous aussi vous souhaitez vendre, appelez nous, nous vous offrirons une estimation détaillée, basée sur plusieurs méthodes de calcul. Oui, l’estimation sera offerte et sans engagement.




























