Appartement traversant, état neuf, au 3e et dernier étage avec ascenseur, terrasse Sud et jolie vue mer, à 100–200 m des commerces du centre historique.
Atouts majeurs
- Vue mer depuis le séjour et la terrasse orientée Sud
- Dernier étage avec ascenseur, appartement traversant et impasse au calme
- Séjour avec cuisine US équipée, vendu meublé
- Extérieurs : terrasse 11 m² côté salon + balcon d’environ 1 m² côté chambre
- Appartement entièrement refait à neuf, il y a 2 ans y compris l’électricité
- Vendu meublé y compris l’électroménager
Pièces & volumes
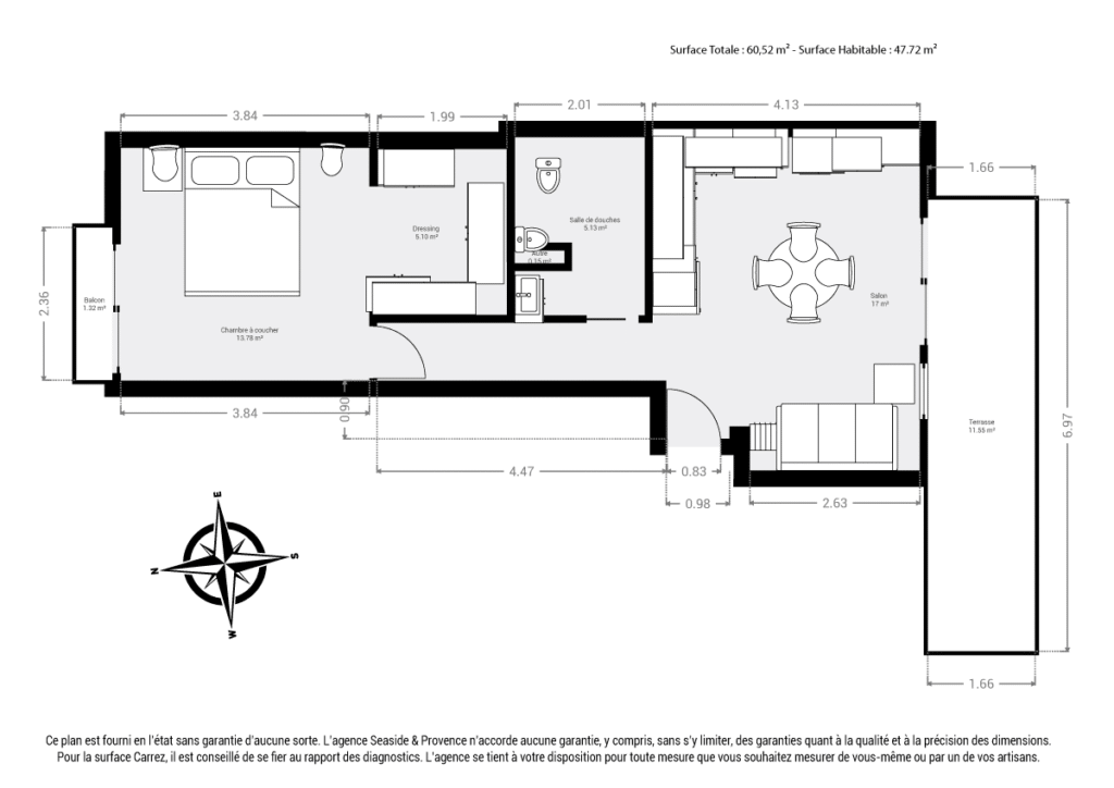
Espace de vie lumineux ouvrant sur la terrasse plein Sud. Cuisine US équipée (plaques, hotte, four, lave-vaisselle) et recoin buanderie avec machine à laver laissée à la vente. Une chambre côté calme avec petit balcon. Salle d’eau avec WC. Menuiseries aluminium à double vitrage et volets roulants manuels côté séjour et chambre. Climatisation réversible pour le confort été/hiver. Appartement traversant, distribution fonctionnelle sur un seul niveau.
Extérieurs & cadre de vie
Terrasse de 11 m² exposée Sud, idéale pour repas et détente, sans vis-à-vis direct. Balcon d’environ 1 m² côté chambre. La résidence “La Marjolaine” est située en impasse pour un environnement paisible tout en restant au cœur de Sainte-Maxime.
Commodités & accès
Centre historique à 100–200 m, commerces et services (restaurants, cabinets médicaux, radiologie, droguerie-quincaillerie) immédiats. Port à 300 m, plage à 650 m. Pas de stationnement inclus ; garage boxé sécurisé en option juste en face (porte électrique + portail d’accès motorisé).
Informations clés
- Réf. : SP-A-2025032516
- Type : Appartement 2 pièces traversant · 47 m² habitables
- Étage : 3/3 (dernier étage) avec ascenseur
- Extérieurs : terrasse 11 m² (Sud) · balcon ~1 m² (chambre)
- Annexes : cave 3,75 m²
- Stationnement : garage boxé sécurisé en option (en face, hors copro de l’immeuble) · prix non communiqué
- Chauffage/Confort : climatisation réversible · DV aluminium · volets roulants manuels
- Cuisine : US équipée (plaques, hotte, four, LV) + machine à laver incluse
- Sanitaires : 1 salle d’eau avec WC
- Vente : meublé
- Copropriété : résidence “La Marjolaine” · 29 lots à usage d’habitation · 62 lots au total · pas de procédure en cours
- Charges : 1 480 €/an (copropriété, hors eau et électricité)
- DPE : D (231 kWh/m².an) · GES : A (2 kg CO₂/m².an)
- Année de construction : 1976
- Assainissement : tout-à-l’égout
- Piscine / gardien : non / non
- Cibles : résidence principale, secondaire, investisseur (location)
- Prix : 475 000 € (honoraires d’agence inclus)
Photos
Plan détaillé de l’appartement

FAQ acheteurs
L’appartement est-il bruyant ?
La rue est une impasse au calme et le logement est au dernier étage, ce qui limite les nuisances. Le double vitrage améliore l’isolation phonique.
Y a-t-il un stationnement ?
Aucun stationnement inclus. Un garage boxé sécurisé est proposé en option juste en face de l’immeuble (porte électrique + portail motorisé). Il ne fait pas partie de la copropriété de la résidence.
Les charges comprennent-elles l’eau ou l’électricité ?
Non. Les 1 480 €/an correspondent aux charges de copropriété, hors eau et électricité.
Le bien est-il adapté à la location ?
Oui, l’emplacement centre-ville, la terrasse Sud, l’ascenseur, la vente meublée et la vue mer sont des atouts recherchés pour une location saisonnière ou annuelle.
Les diagnostics énergie ?
DPE D (231) et GES A (2) confirmés. Menuiseries en double vitrage et climatisation réversible.
Y a-t-il des travaux à prévoir ?
L’appartement a été refait à neuf (électricité incluse). Des travaux de balcons au niveau de la copropriété ont été votés et payés, ce ne sera donc pas à votre charge.
Pré-visiter cette propriété avec la visite virtuelle
Avant de vous déplacer, nous vous proposons, ci-dessous, une visite virtuelle et une vidéo de ce bien immobilier. Vous n’aurez aucun logiciel à installer. Confortablement installé de chez vous, vous pourrez pré-visiter cette habitation. Avec la visite virtuelle, vous pouvez même faire différentes mesures, pour mieux vous rendre compte des volumes. Cela vous permettra de minimiser vos déplacements et de qualifier ou non votre intérêt pour ce logement. Nous restons à votre disposition pour une visite en présentiel ou répondre à vos questions.
Informations complémentaires
Prix
475 000 €
Les honoraires de notre agence sont inclus dans le prix et sont à la charge du vendeur.
Pour toutes informations complémentaires contactez nous au : +33 6 34 33 67 20
Les diagnostics immobiliers, sont à votre disposition sur demande. Les informations concernant l’état des risques et pollutions auxquels ce bien est exposé sont disponibles sur le site gouvernemental Géorisques (georisques.gouv.fr).
Si vous trouvez un bien immobilier que nous vendons moins cher ailleurs, n’hésitez pas à nous le signaler, nous ferons le nécessaire.
Si vous aussi vous souhaitez vendre, appelez nous, nous vous offrirons une estimation détaillée, basée sur plusieurs méthodes de calcul. Oui, l’estimation sera offerte et sans engagement.










